500KW康明斯發電機KTAA19-G6A散熱器技術參數
2019-11-15
來源: 頂博電力
114876
柴油發電機組散熱器是發電機組配備中不可缺少的重要部件之一,承當給柴油發電機組作業負載時產生的熱量熱量散入大氣以降低冷卻水的溫度,散熱器必須有足夠的散熱面積,并用導熱性好的材料制造。維護好發電機組散熱器也是一項不可忽視的重要工作。
廣西頂博電力設備制造有限公司生產的康明斯發電機組均采用重慶康明斯發動機有限公司的柴油機配套全銅無刷發電機配套而成的發電機組。我公司的柴油發電機組功率30-3000KW,有玉柴、上柴、濰柴、康明斯、沃爾沃品牌眾多,可針對不同不同需求、不同工況進行設計制造柴油發電機組,以充分滿足客戶多樣化的電力需求。以下為頂博電.力的康明發電機組KTAA19-G6散熱器出廠檢驗報告。
康明發電機組KTAA19-G6散熱器出廠檢驗報告
柴油機生產廠家:重慶康明斯發動機有限公司
配機型號:KTAA19-G6/KTAA19-G6A(40℃、50HZ)
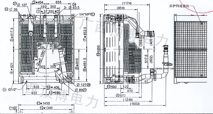
500KW康明斯發電機組KTAA19-G6散熱器構造圖


500KW康明斯發電機組KTAA19-G6散熱器外觀質量
| 檢驗項目 | 檢驗要求 | 檢驗結果符合要求 (OK) | 結果判斷 (Y/N) |
| 散熱芯子外觀 | 1.散熱片片距均勻,不允許兩片壓合在一起,無倒伏破裂 | OK | Y |
| 2.散熱管無彎曲變形和損傷 | OK | Y | |
| 3.散熱片片距均勻,不允許兩片壓合在一起。 | OK | Y | |
| 芯子油漆和表面涂層 | 1.總成按圖紙及客戶要求涂漆。 2.芯子油漆均勻,無脫落和起皮 3、散熱器表面涂層無明顯劃傷、脫落和銹蝕 | OK | Y |
| 散熱器表面 | 1.散熱器外表面應干凈整潔,無灰塵和污跡。 2.散熱器內腔無流動的固體雜質, 3.散熱器的進出口有防塵蓋 4、焊縫無凹凸不平和焊料堆積,周邊無焊渣飛濺 | OK | Y |
| 5、散熱器外表防腐層應均勻美觀、不允許有凹凸不平、起泡、桔皮紋及涂層脫落等缺陷。(頂博電力) | OK | Y | |
| 附件安裝 | 1、水箱蓋與加水口座裝配自如無變形,開啟壓力符合圖紙要求 | OK | Y |
| 2、蒸汽導出管長度及材質符合圖紙要求,外觀完好無破損 | OK | Y | |
| 3、補水管膠管卡箍等安裝位置正確,緊固情況目測良好 | OK | Y | |
| 螺栓緊固情況 | 1.傳動件緊固件扭力符合扭力工藝表 2.連接用緊固件緊固完成 | OK | Y |
| 康明發電機組KTAA19-G6散熱器標志及包裝 | |||
| 產品銘牌 | 具體內容及粘貼位置符合產品圖樣要求。 | OK | Y |
| 配管及隨機零配件 | 按裝箱清單清點,實物齊全,與裝箱清單相符合 | OK | Y |
| 隨機文件: | 裝箱清單、 產品合格證、使用說明書等隨機文件規范齊全 | OK | Y |
| 包裝箱要求 | 包裝箱尺寸及結構按包裝規范執行, 標識內容及要求按產品圖樣要求。 | OK | Y |
http://www.nurse-eri.com
報價:13667715899
推薦文章
- 解密數據中心、醫院、工廠都在搶的500KW玉柴柴油發電機組:憑啥一臺機器全能通吃? 2026-04-17
- 廣西頂博亮相2026年第139屆中國進出口商品交易會(廣交會),以創新科技閃耀國際舞臺 2026-04-16
- 廣西頂博精彩亮相第139屆中國進出口商品交易會(廣交會) 以硬核電力科技對接全球需求 2026-04-16
- 行業首創1000L可拆卸底座油箱,這臺400KW上柴發電機組,歐洲技術,重卡級心臟,供電能力太穩了 2026-04-15
- 可拆卸油箱+50Hz/60Hz通吃全球!這臺400KW上柴柴油發電機組,省油、好維護、帶載猛 2026-04-15
- 純銅繞組、H級絕緣、IP23防護:100kw玉柴柴油發電機組,工業用電的務實方案 2026-04-14
- 為關鍵用電場景選購電力設備:為什么數據中心、醫院、工廠的老板都在選這臺康明斯550KW發電機組? 2026-04-13
- 醫院、銀行、數據中心都在用的發電機組:92kW珀金斯靜音發機組硬核配置,從容應對每一次斷電 2026-04-10
- 百年珀金斯6缸心臟,配斯坦福銅芯,這臺92kW珀金斯靜音發電機組,靜音、省油、智能 2026-04-10
- 什么是硬核工業電?直列6缸+空空中冷+斯坦福純銅電機,這一套配置夠用30年——240kW東風康明斯靜音箱式柴油發電機組 2026-04-09






桂公網安備45010702002247